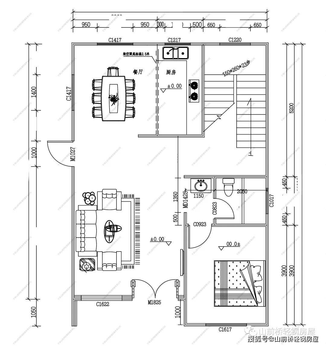
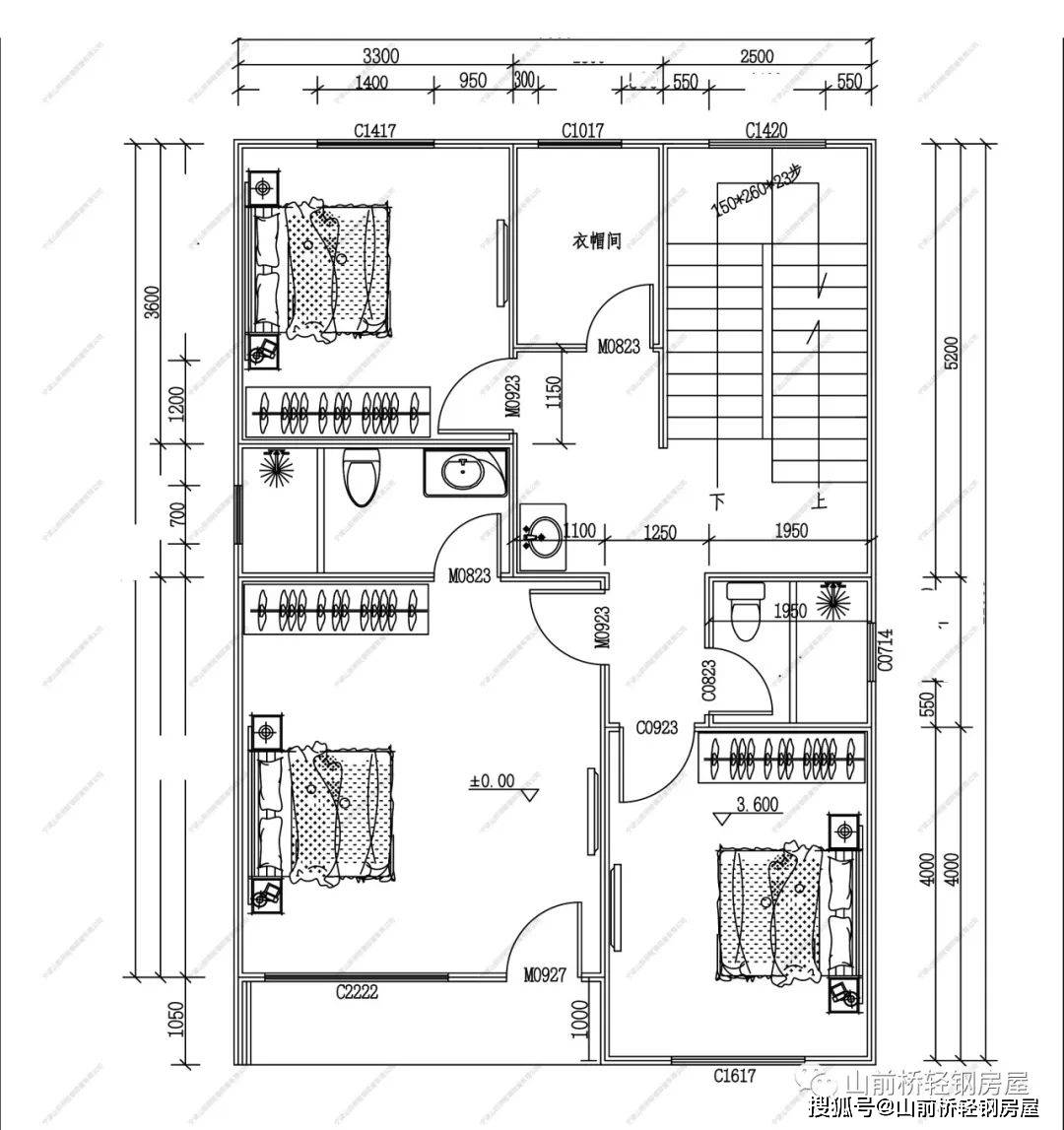
雷速体育- 雷速体育app下载- 足球篮球专业直播平台山前桥案例分享 浙江长街二层轻钢别墅

发布日期:2025-11-04 11:57:44 浏览次数:

  雷速体育,雷速体育直播,足球直播,篮球直播,网球直播,雷速体育比分直播,雷速体育app下载,雷速体育投注,雷速app下载,雷速体育下注,雷速体育网页版,雷速电竞装配式钢结构作为正在兴起的环保建筑, 采用轻钢建筑来建设,能够减少对原生态环境的破坏。这也是近年来,装配式结构吸引人们的地方。

  轻钢建筑具有更好的保温、隔热、隔音功能,居住更舒适;抗震、防风、抗雪、防虫等功能更好,安全系数更高;自重轻、强度高,适用范围更广

  设计好的房屋图纸不会轻易的改动,每一栋房屋的设计都是由专业人员精密计算。

  结构设计、详图设计、计算机模拟安装、工厂制造、工地安装等以较少时间差同步进行,施工周期短;从用材到安装到拆除更加环保,节能,减少建筑垃圾的产生.....